︎
Index
Información y contacto
︎Facebook
︎Instagram
Proyectos
Detalles
2018 Casa Galapagar
2005 Cerramiento del patio en el Museo Arqueológico de Alcalá de Henares
2002 Castillo de Jadraque
2001 Iglesia de Claret de Batete
2001 Exposición "Tempora Christiana"
2000 Palacio Episcopal de Murcia
1998 Iglesia de San Juan de Ávila
1998 Iglesia de la Santa Cruz
1997 Camino de los estudiantes
1997 Iglesia parroquial Sagrada Familia en El Juncal
1995 Catedral magistral de Alcalá de Henares
1995 Restauración y rehabilitación del
1995 Parroquia de la Madre del Rosario
1995 Parroquia de San Marcos
1994 Restauración de la Iglesia de San Pedro apóstol
1994 Almacén Isótropos radiactivos
1993 Palacio Arzobispal
1993 Colegio de los Trinitarios descalzos
1993 Química Fina
1993 Jardín Botánico Campus de Alcalá
1993 Plan Parcial Campus de Alcalá
1991 Apartamentos para estudiantes
1990 Colegio de San Ildefonso
1990 Colegio de San Basilio Magno
1989 Castillejo de Robledo
1988 San Pedro de Caracena
1987 Ibiza
1987 Rehabilitación en Barbastro
1986 Restauración San Hipólito Támara
1985 Rehabilitación Colegio de San Cirilo
1985 Concurso centro de Eventos para Salamanca
1985 Museo Ercávica
1984 Colegio de los Irlandeses
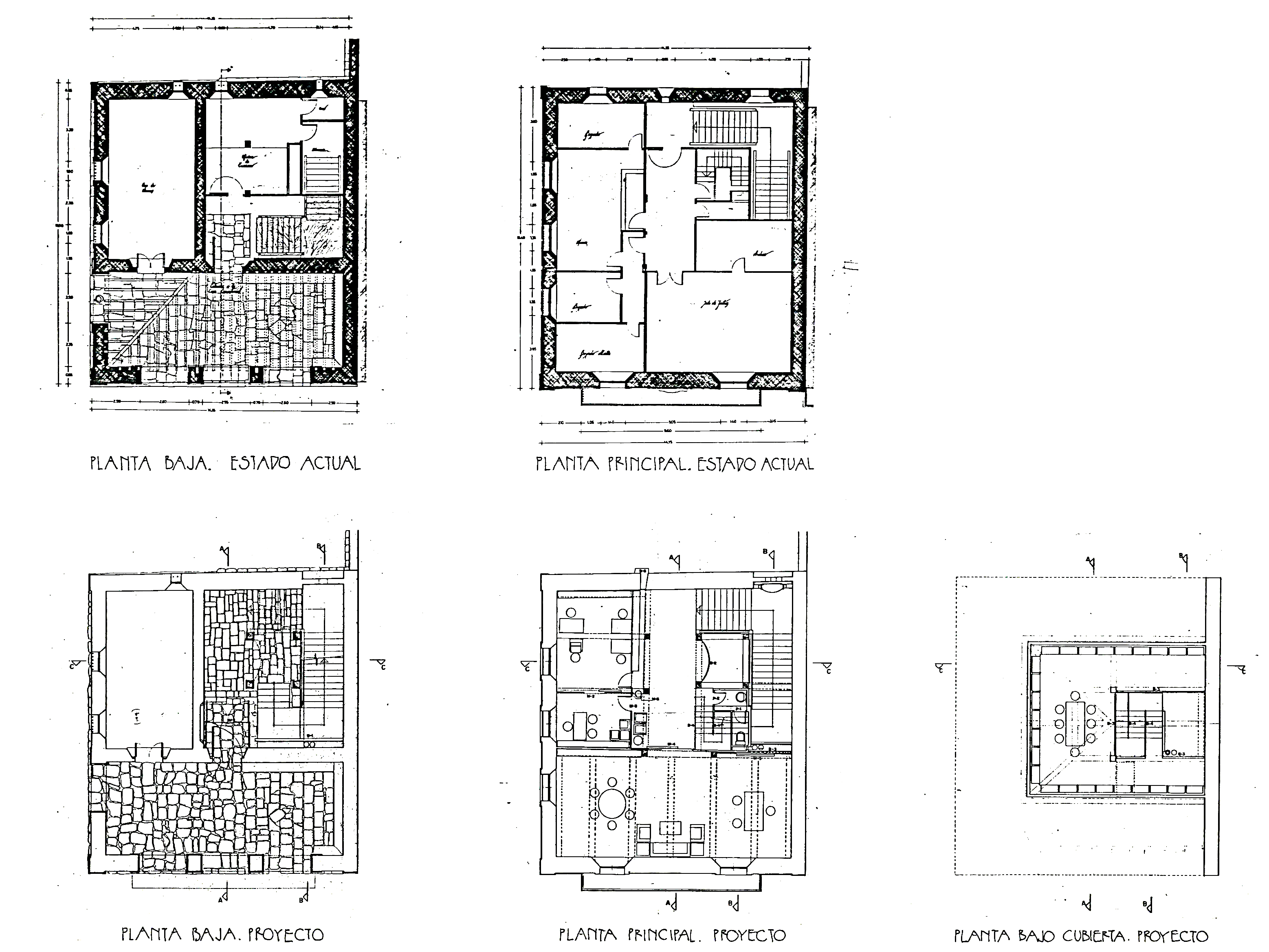
1982 Santillana del Mar
1982 ERI
Actuación sobre el centro histórico de carácter rural
1982-84 / Santillana del Mar, Spain
Colaboración con Guillermo Cases Tello Arquitecto
Todos los derechos reservados a Carlos Clemente San Román
All rights reserved ©
Index
Next ︎